忍者ブログ

気まぐれ解説カフェ(仮)

中学受験算数の入試問題を今日もゆるゆる解説中。算数プリントの無料ダウンロードは右横カテゴリ「プリントの無料ダウンロード」からどうぞ。

11/18

Tue

2025

×

[PR]上記の広告は3ヶ月以上新規記事投稿のないブログに表示されています。新しい記事を書く事で広告が消えます。

11/07

Mon

2011

晃華学園2011【4】 ☆点の移動・多角形の辺上を点が移動してできる三角形の面積☆


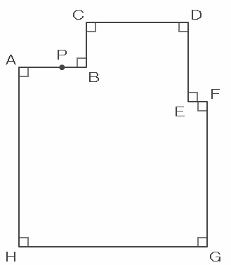
次の図のような多角形ABCDEFGHがあります。点Pは点Aを出発し、毎秒1㎝の速さでA→B→C→D→E→F→G→Hの順に辺上を点Hまで動きます。グラフは点Pが点Aを出発してからの時間(秒)と三角形APHの面積(㎠)の関係を表したものです。次の各問いに答えなさい。
 
※ 画像はすべて、クリックすると拡大します。


koka401.png













koka402.png










(1)
AHの長さを求めなさい。
 
(2)
CDの長さを求めなさい。
 
(3)
多角形ABCDEFGHの面積が75㎠のとき、EFの長さを求めなさい。
 
 
※ 続きを見る場合は、下の「解説はこちらから」をクリック!




 


(1)
点Pは多角形の頂点Aから出発して頂点Hまで順番に進むので、グラフの折れ曲がっているポイントへAからHまで順番に書き込んでみると次のような図になります。
 
※ 画像はすべて、クリックすると拡大します。


koka403.png










上のグラフから、点Pが頂点Aを出発してから3秒後には頂点Bに到着し、そのときの三角形APHの面積は12㎠となることが分かります。
 
また、毎秒1㎝の速さで進む点Pは3秒間で1×3=3㎝進むので、次の図のように辺ABは3㎝です。


koka404.png













上の図の辺AHの長さを□㎝とおくと、三角形APHの面積を求める式は「□×3÷2=12㎠」と表せます。
 
したがって、辺AHの長さは12×2÷3=8㎝になります。
 
 
(2)
さっきのグラフから、点Pが頂点Dに到着したときの三角形APHの面積は30㎠であることが分かります。
 
次の図のように、三角形APHの高さを□㎝とおくと、三角形APHの面積を求める式は「8×□÷2=30㎠」と表せるので、三角形APHの高さは30×2÷8=7.5㎝になります。


koka405.png













次の図を見れば分かるように、さっき求めた7.5㎝は、辺ABとCDの長さの合計になっています。
 
辺ABの長さは3㎝なので、辺CDの長さは7.5-3=4.5㎝です。


koka406.png













(3)
グラフから、毎秒1㎝で進む点Pは、頂点BからCまで5-3=2秒かけて進むことが分かるので、辺BCの長さは1×2=2㎝です。
 
また、頂点AからEまで進むのに13秒かかるので、辺AB、BC、CD、DEの長さの合計は1×13=13㎝です。
 
辺ABは3㎝、辺BCは2㎝、辺CDは4.5㎝なので、辺DEの長さは13-(3+2+4.5)=3.5㎝になります。
 
また、次の図を見れば分かるように、辺AHとCBの長さの合計は、辺DEとFGの長さの合計と等しいので、辺FGの長さは(8+2)-3.5=6.5㎝です。


koka407.png











次の図のように、頂点BとEから辺HGに向けてそれぞれ垂線を引き、その交点をI、Jとすると、この多角形は3つの長方形に分けることができます。
 
このうち、長方形AHBIの面積は8×3=24㎠、長方形CIJDの面積は(2+8)×4.5=45㎠、そして多角形ABCDEFGHの面積は75㎠なので、長方形EJGFの面積は75-(24+45)=6㎠になります。


koka408.png











つまり次の図のように、長方形EJGFは面積が6㎠で、縦の長さが6.5㎝なので、この問題で求めたい辺EFの長さは6÷6.5=13分の12㎝になります。

koka409.png














 
PR

Comment

為になります

  • 娘のママ
  • 2011-11-07 16:31
  • edit
塾のテストで、なかなか点数が取れない娘の練習になりそうな問題が沢山あり、活用させていただきます。
解説が丁寧で助かります★

それは何よりです♪

  • ゆんたく
  • 2011-11-07 22:51
  • edit
「塾のテストでなかなか点数が取れない」というのは家庭内紛争の原因になりかねないので(笑)、その予防に多少なりとも貢献しているのなら幸いです。

算数の苦手な女の子って結構多いみたいですけど、最速とか最短ルートの飛躍した解き方ではなく、ちょっと遠回り&幼稚な解き方で答えにたどり着くのも十分アリだと思います。

「苦手なりに点数はそこそこ取れる」ぐらいのレベルになれば、あとは総合力勝負に持ち込めるので、あまり深刻になりすぎずに毎日を過ごしていただければと思います。
お名前
タイトル
E-MAIL
URL
コメント
パスワード

学校名で検索!

「フェリス」、「麻布」などの学校名を入力して検索すると該当記事の一覧が表示されます。 「該当なし」だったらごめんなさいm(_ _)m

最新記事

(12/18)
(12/17)
(12/16)
(12/15)
(12/14)
(12/13)
(12/12)
(12/11)
(12/10)
(12/09)
(12/08)
(12/07)
(12/06)
(12/05)
(12/04)
(12/03)
(12/02)
(12/01)
(11/30)
(11/29)

最新コメント

[11/07 ゆんたく]
[11/07 娘のママ]
[08/18 ゆんたく]
[08/18 NONAME]
[05/17 ゆんたく]
[05/16 グレートマジンガーZ]
[01/15 ゆんたく]
[01/14 NONAME]
[01/14 NONAME]
[01/14 NONAME]

プロフィール



HN:
ゆんたく
性別:
非公開
職業:
たびびと(Lv.4)
趣味:
チェロの演奏
自己紹介:
かつてゆんたくと呼ばれていたゆんたくです。

こんなゆんたくへ何か個人的に連絡したいことがおありでしたら、下記アドレスまでメールにてお願いいたします。

hassysar@gmail.com


カウンター





Copyright © 気まぐれ解説カフェ(仮) : All rights reserved

TemplateDesign by KARMA7

忍者ブログ [PR]