忍者ブログ

気まぐれ解説カフェ(仮)

中学受験算数の入試問題を今日もゆるゆる解説中。算数プリントの無料ダウンロードは右横カテゴリ「プリントの無料ダウンロード」からどうぞ。

11/05

Wed

2025

×

[PR]上記の広告は3ヶ月以上新規記事投稿のないブログに表示されています。新しい記事を書く事で広告が消えます。

12/03

Sat

2011

横浜共立2011【4】 ☆図形の移動・おうぎ形のまわりを円が転がる問題☆


半径6㎝、中心角270度のおうぎ形があります。次の図のように、半径2㎝の円が、おうぎ形のまわりを矢印の方向におうぎ形に接しながら1周して、元の位置に戻ります。次の(  )にあてはまる数を求めなさい。ただし、円周率は3.14とします。
 
※ 画像はクリックすると拡大します。


11yokyo401.png













(1)
おうぎ形の周のうち、円と接することができる部分の長さは(  )㎝です。
 
(2)
円の中心が動いてできる線の長さは(  )㎝です。
 
(3)
円が通ったあとにできる図形の面積は(  )㎠です。
 
 
※ 続きを見る場合は、下の「解説はこちらから」をクリック!


 
PR

11/22

Tue

2011

聖光学院2011【3】 ☆図形の回転・正方形の頂点を中心として辺が回転する問題☆


次の図のような1辺が6㎝の正方形ABCDがあります。点PがCD=CPを満たしながら、この正方形の外側を動いていくとき、次の問いに答えなさい。
 
※ 画像はクリックすると拡大します。


seiko301.png









(1)
Pが点Dから点Bまで動くとき、CPが動いてできる図形の面積を求めなさい。ただし、円周率は3.14とします。
 
(2)
三角形ABDと三角形DBPの面積が等しくなるとき、三角形DCPの角DCPの大きさとして考えられる値をすべて答えなさい。ただし、角DCPとは、辺CDと辺CPの間の角度を表します。
 
(3)
角CDPと角CBPの大きさの比が5:1のとき、角CBPの大きさとして考えられる値をすべて答えなさい。
 
 
※ 続きを見る場合は、下の「解説はこちらから」をクリック!





 

11/14

Mon

2011

洗足学園2011【4】 ☆点の移動・多角形の辺上を点が移動するときにできる三角形の面積☆


次の図のような多角形ABCDEFがあります。点Pは一定の速さで、点Bを出発点として点Aまで、多角形ABCDEFの周上を、B→C→D→E→F→Aの順に移動します。
 
※ 画像はすべて、クリックすると拡大します。


senzok401.png








次のグラフは、点Pが出発してからの時間と三角形PABの面積の関係を表しています。このとき、あとの問いに答えなさい。

senzok402.png







(1) グラフのアにあてはまる数はいくつですか。
 
(2) 点Pの速さは毎秒何㎝ですか。
 
(3) グラフのイにあてはまる数はいくつですか。
 
 
※ 続きを見る場合は、下の「解説はこちらから」をクリック!





 

11/12

Sat

2011

鴎友学園2011【8】 ☆図形の移動・図形の内部を円が転がりながら1周する問題☆


次の図は、長方形から正方形を取り除いたものです。半径3㎝の円が、この図形の内側にそって、転がりながら1周して元の位置に戻ります。円周率は3.14として、次の各問いに答えなさい。
 
※ 画像はクリックすると拡大します。


29d5ef38.png










(1)
円の中心が動いてできた線の長さを求めなさい。
 
(2)
この図形内で円が通らなかった部分の面積を求めなさい。
 
 
※ 続きを見る場合は、下の「解説はこちらから」をクリック!



 

11/07

Mon

2011

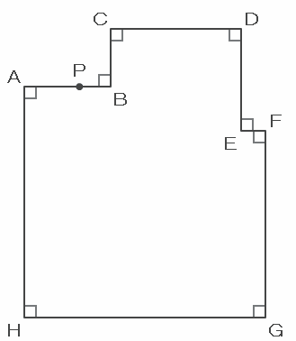
晃華学園2011【4】 ☆点の移動・多角形の辺上を点が移動してできる三角形の面積☆


次の図のような多角形ABCDEFGHがあります。点Pは点Aを出発し、毎秒1㎝の速さでA→B→C→D→E→F→G→Hの順に辺上を点Hまで動きます。グラフは点Pが点Aを出発してからの時間(秒)と三角形APHの面積(㎠)の関係を表したものです。次の各問いに答えなさい。
 
※ 画像はすべて、クリックすると拡大します。


koka401.png













koka402.png










(1)
AHの長さを求めなさい。
 
(2)
CDの長さを求めなさい。
 
(3)
多角形ABCDEFGHの面積が75㎠のとき、EFの長さを求めなさい。
 
 
※ 続きを見る場合は、下の「解説はこちらから」をクリック!




 

11/01

Tue

2011

聖光学院2011【2】 ☆点の移動・円周上を複数の点が移動しながらぶつかる問題☆


次の図1のように点Oを中心とする円の円周上を動く点P、Qを考えます。Pは円周上のある点Aを出発し、反時計回りに1分間で4周する速さで動きます。QはAを出発し、時計回りに1分間で2周する速さで動きます。PとQは同時に出発し、出発してからぶつかるまでは速さを変えません。2点がぶつかるとPはぶつかる前の2分の1の速さで、Qはぶつかる前の3分の2の速さでそれぞれ逆回りに動き始めます。このとき、次の問いに答えなさい。
 
※ 画像はすべて、クリックすると拡大します。


seiko201.png













(1)
3点P、O、Qが最初に一直線になるのは出発してから何秒後ですか。
 
(2)
PとQが出発してから2回目にぶつかったとき、角POAの大きさは( ア )度で、それは出発してから( イ )秒後です。( ア )、( イ )にあてはまる数をそれぞれ答えなさい。ただし、角POAの大きさとは、次の図2における180度以下の角度とします。


seiko202.png








(3)
次の図3のように、Aを片方の端の点とするこの円の直径の反対側の端の点をBとします。P、QがAを同時に出発するのと同時に、点RはBから反時計回りに出発します。ただし、RはP、Qとはぶつからずにすれ違い、そのままの速さで動き続けます。


seiko203.png












PとQが出発してから2回目にぶつかるまでに、RがPとは1回もすれ違わず、Qと2回すれ違うとき、Rの速さは毎分( ウ )周より速く、毎分( エ )周よりも遅くなります。( ウ )、( エ )にあてはまる数をそれぞれ答えなさい。
 
 
※ 続きを見る場合は、下の「解説はこちらから」をクリック!





 

10/29

Sat

2011

横浜雙葉2011【3】 ☆点の移動・台形の斜辺と底辺を点が移動する問題☆


次の図のような台形ABCDがあり、点Pは辺AB上を、点Qは辺BC上をそれぞれ一定の速さで動きます。
 
※ 画像はクリックすると拡大します。


yfuta301.png








今、点PがAから、点QがBから同時にスタートしたところ、10秒後に点Pは点Bに、点Qは点Cに同時に到着しました。このとき次の問いに答えなさい。
 
(1)
点P、Qが同時にスタートしてから4秒後の三角形PBQの面積を求めなさい。
 
(2)
三角形PBQが初めて直角三角形になるのは、2つの点がスタートしてから何秒後ですか。
 
(3)
辺PQと対角線BDとの交点をEとします。2つの点がスタートしてから3秒後のPE:EQを求めなさい。ただし、できるだけ簡単な整数の比で答えなさい。
 
 
※ 続きを見る場合は、下の「解説はこちらから」をクリック!



 

10/24

Mon

2011

横浜女学院2011【5】 ☆点の移動・直線上を移動する点と三角形の面積☆


次の図のように、台形ABCDと直線Lがあります。点Pが直線L上を動くとき、次の各問いに答えなさい。
 
※ 画像はクリックすると拡大します。


ykj501.png







(1)
点Pが点Aより右側にあり、AP=6㎝のとき、三角形PABとPCDの面積の比を最も簡単な整数で表しなさい。
 
(2)
三角形PBCが、BCとPCの長さが等しい二等辺三角形となるとき、APの長さは何㎝と何㎝ですか。
 
(3)
台形ABCDの面積と、三角形PABの面積が等しくなるとき、三角形PBCの面積は何㎠と何㎠ですか。
 
 
※ 続きを見る場合は、下の「解説はこちらから」をクリック!



 

学校名で検索!

「フェリス」、「麻布」などの学校名を入力して検索すると該当記事の一覧が表示されます。 「該当なし」だったらごめんなさいm(_ _)m

最新記事

(12/18)
(12/17)
(12/16)
(12/15)
(12/14)
(12/13)
(12/12)
(12/11)
(12/10)
(12/09)
(12/08)
(12/07)
(12/06)
(12/05)
(12/04)
(12/03)
(12/02)
(12/01)
(11/30)
(11/29)

最新コメント

[11/07 ゆんたく]
[11/07 娘のママ]
[08/18 ゆんたく]
[08/18 NONAME]
[05/17 ゆんたく]
[05/16 グレートマジンガーZ]
[01/15 ゆんたく]
[01/14 NONAME]
[01/14 NONAME]
[01/14 NONAME]

プロフィール



HN:
ゆんたく
性別:
非公開
職業:
たびびと(Lv.4)
趣味:
チェロの演奏
自己紹介:
かつてゆんたくと呼ばれていたゆんたくです。

こんなゆんたくへ何か個人的に連絡したいことがおありでしたら、下記アドレスまでメールにてお願いいたします。

hassysar@gmail.com


カウンター





Copyright © 気まぐれ解説カフェ(仮) : All rights reserved

TemplateDesign by KARMA7

忍者ブログ [PR]